產品介紹
直通式籃式過濾器用于油或其它液體管道上,過濾管道里的雜物,過濾孔面積比通徑管面積大于2-3倍.遠遠超過Y型、T型過濾器過濾面積。過濾器精度在過濾器中屬于一種精度最佳的過濾器,濾網結構與其它過濾網不一樣,因形狀像籃子,故名藍式過濾器。
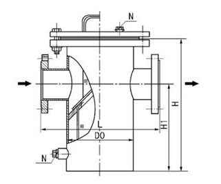
直通式籃式過濾器主要由接管、筒體、濾籃、法蘭、法蘭蓋及緊固件等組成。安裝在管道上能除去流體中的較大固體雜質,使機器設備(包括壓縮機、泵等)、儀表能正常工作和運轉,達到穩定工藝過程,保障安全生產的作用。
直通式籃式過濾器適用范圍
化工,石油化工生產中的弱腐蝕性物料,如:水,氨,油品,烴類等。
化工生產中的腐蝕性物料,如:燒堿,濃稀硫酸,碳酸,醋酸,酯酸等。
制冷中的低溫物料,如:液甲烷,液氨,液氧和各種冷劑。
輕工食品,制藥生產中有衛生要求的物料,如:啤酒,飲料,乳制品,糧漿醫藥用品等。
各種特殊工藝的高效過濾器等。
直通式籃式過濾器工作原理

管道在安裝時會有其它雜物帶入管道,在生產中原材料中也含有雜物。管道里液體經過過濾器時它的污物由過濾器收藏到濾網中,在一定的程度時通過泄壓孔泄壓,以達到輕松打開殼蓋清理濾網即可,并可通過滯留物排放口對殼體進行清理?!?/span>
直通式籃式過濾器選型的一般原則:
1、進出口通徑:
原則上藍式過濾器的進出口通徑不應小于相配套的泵的進口通徑,一般與進口管路口徑一致。
2、公稱壓力:
按照過濾管路可能出現的最高壓力確定過濾器的壓力等級。
3、藍式過濾器孔目數的選擇:
主要考慮需攔截的雜質粒徑,依據介質流程工藝要求而定。各種規格絲網可攔截的粒徑尺寸查下表“濾網規格”。

|
公稱通徑 |
尺 寸(mm) |
管 塞 |
|||
|
L |
H |
H1 |
D0 |
||
|
25 |
180 |
260 |
160 |
76 |
R3/4" |
|
32 |
200 |
270 |
160 |
76 |
R3/4" |
|
40 |
260 |
300 |
170 |
108 |
R3/4" |
|
50 |
260 |
300 |
170 |
108 |
R3/4" |
|
65 |
330 |
360 |
210 |
133 |
R3/4" |
|
80 |
340 |
400 |
250 |
159 |
R3/4" |
|
100 |
400 |
470 |
300 |
219 |
R3/4" |
|
125 |
480 |
550 |
360 |
273 |
R3/4" |
|
150 |
500 |
630 |
420 |
273 |
R3/4" |
|
200 |
560 |
780 |
530 |
325 |
R3/4" |
|
250 |
660 |
930 |
640 |
426 |
M20*1.5 |
|
300 |
750 |
1200 |
840 |
478 |
M20*1.5 |
|
600 |
1380 |
2000 |
1400 |
800 |
M35*2.0 |
不銹鋼鋼絲網技術參數
|
~目數/in |
10 |
20 |
30 |
40 |
50 |
60 |
80 |
100 |
150 |
200 |
|
~孔數/in2 |
100 |
200 |
900 |
1600 |
2500 |
3600 |
6400 |
10000 |
22500 |
40000 |
|
可截粒徑(U) |
2032 |
955 |
614 |
442 |
356 |
301 |
216 |
173 |
108 |
77 |
|
絲徑(mm) |
0.51 |
0.315 |
0.224 |
0.206 |
0.152 |
0.122 |
0.102 |
0.081 |
0.061 |
0.051 |
|
有效過濾面積 |
64 |
58 |
54 |
52 |
50 |
51 |
47 |
46 |
45 |
42 |
綜合技術參數
|
主體材質 |
A3(WCB) L2 304(CF8) 304(CF3) 316(CF8M) 316(CF3M) 襯里 |
|
公稱通徑/壓力 |
DN15-400mm(1/2-16”) PN0.6-5.0MPa(150-600Lb) |
|
阻火層材質 |
304 304L 316 316L 哈氏合金 蒙乃爾合金 |
|
防爆等級 |
BS 5501: IIA IIB IIC |
|
螺帽螺栓 |
20# 304 304L 316 316L |
|
密封墊片 |
丁晴橡膠墊片 聚四氟乙烯墊片 金屬墊片 石墨墊片 |
|
密封面 |
突面(RF) 平面 (FF) 凹凸面(MFM) 榫槽面(TG) |
|
法蘭標準 |
HG GB HGJ JB ANSI JIS DIN BS NF |
|
連接形式 |
法蘭連接(II) 內螺紋連接(III) 外螺紋連接(IV)對焊連接(I) |
|
設計制造檢測標準 |
HG/J532-91 |
|
工作溫度 |
碳鋼: -30℃ ~ +350℃ 不銹鋼: -80℃ ~ +480℃ |
|
外表 |
碳鋼: 防腐油漆 鋁合金、不銹鋼: 酸洗處理或防腐油漆 |
主體材料及代號
|
標配材質 |
碳鋼 A3 WCB |
C |
|
不銹鋼304 CF8 |
S1 |
|
|
選配材質 |
不銹鋼304L CF3 |
S2 |
|
不銹鋼316 CF8M |
S3 |
|
|
不銹鋼316L CF3M |
S4 |
|
|
備注:如客戶需要其它材質,請在訂貨時說明。 |
||
壓力等級
|
標配壓力 |
公制: 0.6MPa 1.0MPa |
|
英制: 150Lb |
|
|
選配壓力 |
公制:1.6- 5.0MPa |
|
美標:300-600Lb |
|
|
日標:10-50K |
|
|
備注:如客戶需要其它壓力等級,請在訂貨時說明。 |
|
法蘭標準
|
標配法蘭 |
公制:HG 20592-97 1.0Mpa RF |
|
英制:ANSI B 1.6 RF |
|
|
選配法蘭 |
公制:GB HGJ SH JB |
|
英制:JIS DIN BS NF |
|
|
備注:如客戶選用配置的法蘭,請在訂貨時說明。 |
|
連接形式及代號
|
連接形式 |
代號 |
連接形式 |
代號 |
|
對焊連接 |
I |
外螺紋連接 |
IV |
|
法蘭連接 |
II |
松套連接 |
V |
|
內螺紋連接 |
III |
卡箍連接 |
VI |
|
備注:如客戶需要其它連接形式,請在訂貨時說明。 |
|||
管道安裝示意圖

維修與保養
直通式籃式過濾器的核心部位是過濾器芯件,過濾芯由過濾器框和不銹鋼鋼絲網組成,不銹鋼鋼絲網屬宜損件,需特別保護;
當過濾器工作一段時間后,過濾器芯內沉淀了一定的雜質,這時壓力降增大,流速會下降,需及時清除過濾器芯內的雜質;
清洗雜質時,特別注意過濾芯上的不銹鋼鋼絲網不能變形或損壞,否則,受損的過濾芯,會使過濾后的介質純度達不到設計要求,壓縮機、泵、儀表等設備會遭到破壞;
如發現不銹鋼鋼絲網變形或損壞,需馬上更換。
- 地址: 河南省新鄉市牧野區小里工業園71號
- 咨詢電話:0373-2611789
- 咨詢電話:0373-3808088
- 傳真: 0373-3809898
- 郵箱: huayufilter@163.com
-

-

產品優勢
納污量大
選用優質進口濾材,單位面積過濾材料所能容納的顆粒污染的質量高,納污量大,使用壽命長。
過濾精度穩定
先進的加工工藝,減少濾材在折波加工中因機械力產生的破損,保障濾芯過濾精度穩定均一。
結構完整性高
多次通過標準ISO2942:2004試驗,濾芯不存在影響其過濾精度評定結果的結構缺陷。確保精度與實際精度水平一致。
出廠檢驗嚴格
原材料、半成品、成品完整嚴格的產品出廠檢驗流程,出廠產品實行全檢,確保產品出廠品質。
相關產品
我要留言
如果您有什么需求或者疑問,請您留言,我們收到后會盡快給您答復!
24小時服務熱線:0373-2611789
技術部服務熱線:0373-2638798
服務貼心! 制造精心! 價格稱心! 客戶放心!
以客戶為導向為客戶提供解決方案
以服務為核心多方位服務于客戶
以質量為主要為客戶打造值得信賴的產品
